Двухкомнатная квартира 44,12 м2 по ул. Каширское шоссе 1 за 17472476 руб.

Двухкомнатная квартира по ул. Каширское шоссе, 1 в Москве
Цена 17 472 476 р. (396 022 р./м2)
Подать заявку на ипотеку
Район Нагатино-Садовники
Адрес Каширское шоссе, 1
Этаж 24/32
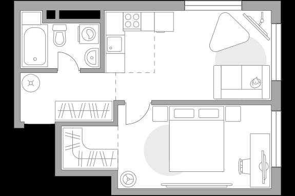
Площадь общая 44,12 м2, жилая 27,8 м2, кухни 3,57 м2
Кол-во комнат Двухкомнатная
Продается 2-комн. квартира, площадью 44.12 м2 в монолитной новостройке в 4 мин. транспортом от м. Верхние котлы, район города - Нагатино-Садовники. Возможен вариант покупки с использованием ипотечных средств. Жилая площадь 27.8 м2, кухня 3.57 м2. Площадь комнат: 14.44/13.36 м2, квартира без отделки, окна выходят на улицу. Квартира располагается на 24 этаже 32-этажного дома в ЖК BeLuck Коломенское. Застройщик - ГК Гранель, сдача дома - II квартал 2027 года, закрытая территория. Подземная парковка. Обеспечение безопасности: видеонаблюдение. Инфраструктура: детские площадки, спортивные площадки, места для отдыха, коммерческие объекты, офисы. «BeLuck Коломенское» - это жизнь в окружении парков и набережных, всего в двух станциях метро от Садового кольца. Современный подход к проектированию, широкий выбор планировочных решений, приватная благоустроенная территория - комплекс вобрал в себя все самое необходимое для комфортной жизни. С верхних этажей вам откроются впечатляющие виды на город и Москву-реку. Разновысотные здания придают динамику архитектуре и выделяют жилой комплекс среди другой застройки. В концепции проекта используются вентилируемые фасады с металлическими панелями и декоративной штукатуркой. Каждая секция имеет свой характер и цветовое решение. Покупателям предлагаются лоты с увеличенным остеклением и несколькими видами балконов. ЖК «BeLuck Коломенское» возводится на юге Москвы, рядом с Каширским шоссе. Для покупателей объектов ГК «Гранель» запускает субсидированную семейную ипотеку под 3,9%. Воспользоваться программой могут семьи, в которых есть хотя бы один ребёнок младше 7 лет. Процентная ставка сохраняется на весь срок кредитования. Для оформления субсидированной ипотеки необходимо внести первоначальный взнос от 20,1%. Возможно использование материнского капитала. Максимальная сумма займа по программе - 12 млн рублей в Москве и Московской области, и 6 млн рублей для регионов России, например, для Башкортостана. Более подробная информация на официальном сайта Застройщика или по телефону. Условия и сроки акции уточняйте по телефону. Аккредитованные банки: Газпромбанк, МТС Банк, Металлинвестбанк, Сбербанк, Россельхозбанк, Банк ДОМ. РФ, Промсвязьбанк, Абсолют Банк, Уралсиб, ВТБ, Альфа Банк, РНКБ, ТрансКапиталБанк, Банк «Санкт-Петербург, Московский Кредитный Банк, Совкомбанк Позвоните и узнайте условия покупки прямо сейчас!
Описание дома
Этажность дома 32
Объявление № 21611573
Дата подачи:
23 марта 2025 г. 3:53
Дата обновления:
22 марта 2025 г. 23:19
Просмотров 21 Хотите продать быстрее?

Продавец
Отдел продаж
Показать номер телефона
Пожаловаться
Комментарии:
Добавить